Recology SF
Schematic Design and Construction Drawings
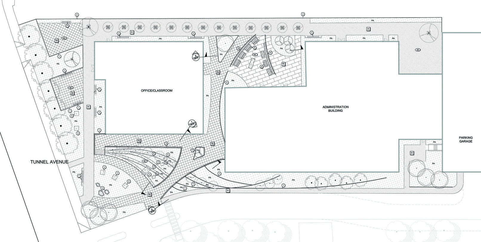
Site: Recology Headquarters, SF, CA
Project: Programmed spaces for artists and office workers, highlighting sustainability and reuse
Design: Shared spaces, spatial experiences, (r)ecology
Landscape Architecture Certification Program / UC Berkeley Extension






