• PORTFOLIO
  • RESUME+PROJECTS
  • ABOUT
  • CONTACT
  • PORTFOLIO
  • RESUME+PROJECTS
  • ABOUT
  • CONTACT

Planting Design

Various Projects

Landscape Architecture Certification Program / UC Berkeley Extension

RIPARIAN CENTER
RIPARIAN CENTER - FERN "CLASSROOM"
STREETSCAPE
ILLUSTRATIVE
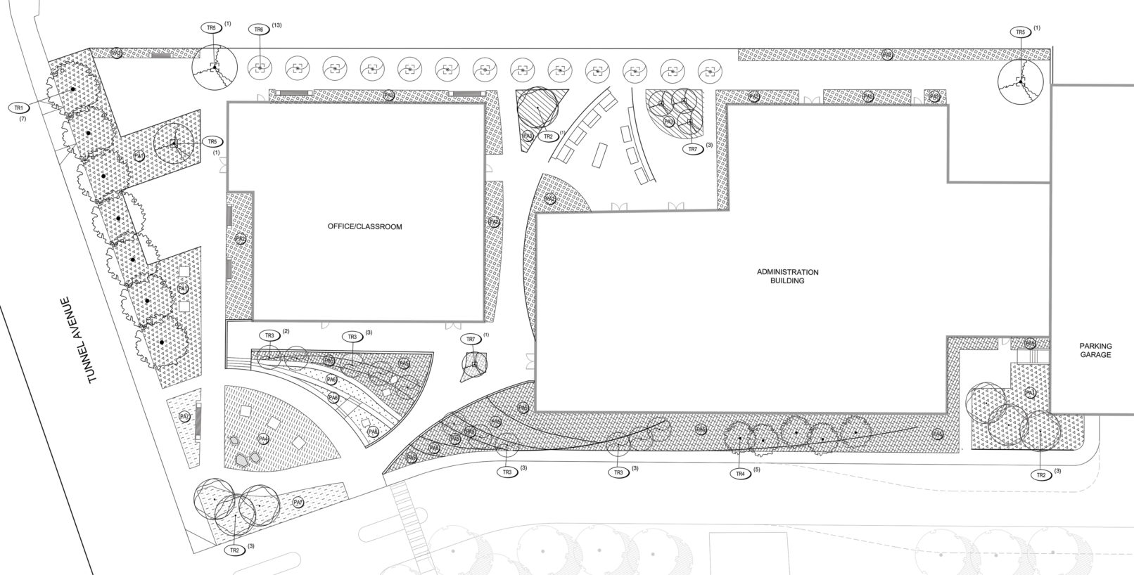
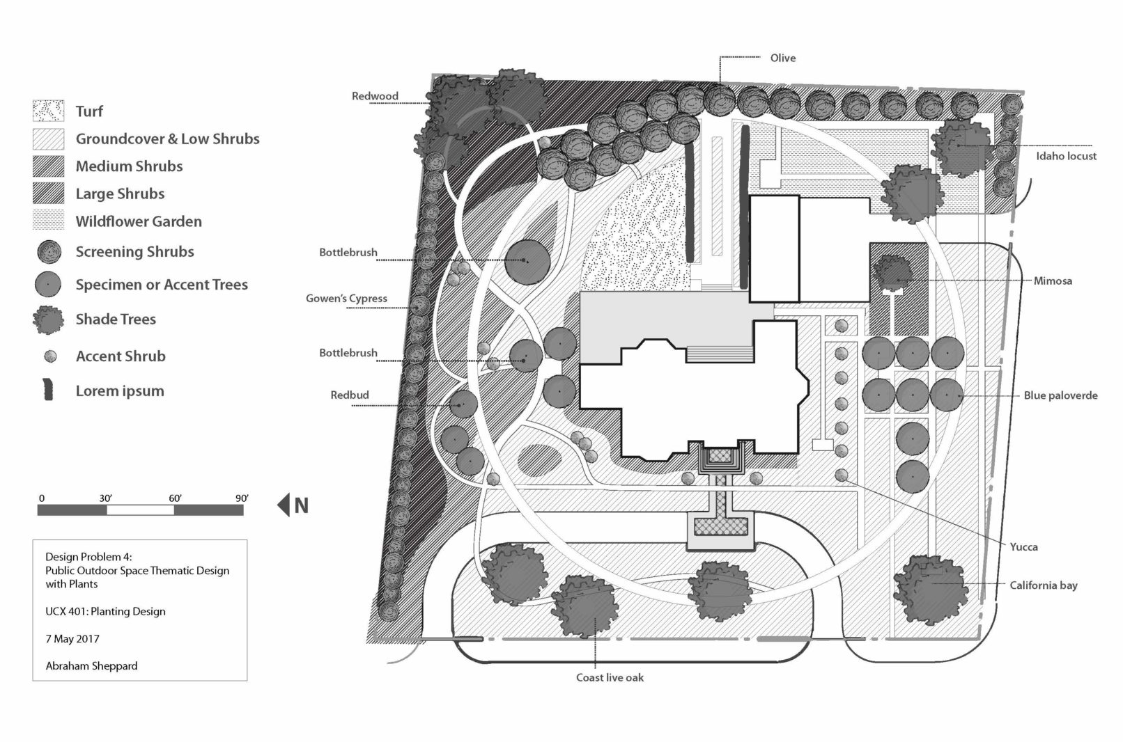
PLANTING PLAN
PLANTING PLAN
THEMATIC SPACES (HAD TO KEEP CIRCULAR PATH)
Previous
Next